 |
 |
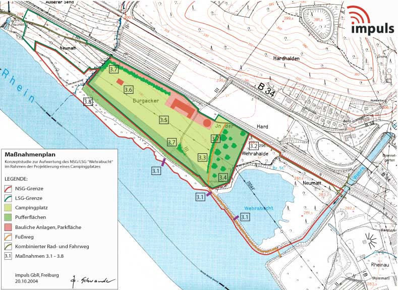
Die Stadt Wehr plant im Natur- und Landschaftsschutzgebiet “Wehramündung“ eine städtebauliche Entwicklungsmaßnahme.
Im LSG liegen zwei landwirtschaftlich intensiv genutzte Maisäcker, die unmittelbar an das NSG grenzen. Auf diesen Flächen soll zukünftig ein Campingplatz entstehen, der nach ökologischen Kriterien entwickelt und bewirtschaftet werden soll. Außerdem wird das Naturschutzgebiet vom regionalen Radverkehr stark frequentiert. Es ist der Wunsch der Kommune, dass zukünftig das NSG für die Tierwelt und die Erholung suchenden Fußgänger beruhigt wird.
Eine ideale Planungsaufgabe für impuls! Interessenskonflikte zwischen Naturschutz, Kommune und Investor schienen programmiert. impuls dokumentierte in einem Bestandsplan die bestehenden Nutzungen und Planungen, beschrieb in einem Maßnahmenplan das Vorhaben und stellte mit einer Matrix Eingriff und Ausgleichsmaßnahmen gegenüber. Die Konzeptstudie von impuls dient dem Gemeinderat und den beteiligten Trägern öffentlicher Belange wie Landratsamt, Regionalverband und Regierungspräsidium als sachliche Entscheidungsgrundlage für das weitere Vorgehen. |